827 Glenferrie Road
Hawthorn VIC 3122
SearchBack to results
- Home
- › For Lease
- › VIC
- › Hawthorn
- › Medical / Consulting
- › 827 Glenferrie Road, Hawthorn VIC 3122
Listed by
0404 893 142
More about 827 Glenferrie Road Hawthorn VIC 3122
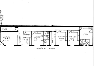
827 Glenferrie Road Hawthorn VIC 3122 is categorized as Medical & Consulting Property. It has a floor area of 171 m². The listing ID for this property is 17928580.
More Medical / Consulting properties for Lease in Hawthorn VIC
For LeaseAsking: $27,000 Net Per Annum
ground floor/434 burwood road,hawthorn, VIC 3122
63 m²
Medical / Consulting




