535 North Road
Ormond VIC 3204
SearchBack to results
- Home
- › For Sale
- › VIC
- › Ormond
- › Shop & Retail
- › 535 North Road, Ormond VIC 3204
Co-Agents
0426 285 889
0421 573 106
More about 535 North Road Ormond VIC 3204
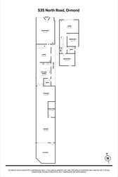
535 North Road Ormond VIC 3204 is categorized as Shop & Retail Property. It has a floor area of 245 m² and a land area of 242 m². There are 2 x onsite parkings.The listing ID for this property is 2020432583.






