140 Diggers Rest-Coimadai Road
Diggers Rest VIC 3427
SearchBack to results
- Home
- › For Sale
- › VIC
- › Diggers Rest
- › Shop & Retail
- › 140 Diggers Rest-coimadai Road, Diggers Rest VIC 3427
Co-Agents
0401085234
0433438600
More about 140 Diggers Rest-Coimadai Road Diggers Rest VIC 3427
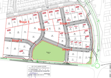
140 Diggers Rest-coimadai Road Diggers Rest VIC 3427 is categorized as Shop & Retail Property. It has a floor area of 1,864 m² and a land area of 1,864 m². The listing ID for this property is 2020506200.
More Shop & Retail properties for Sale in Diggers Rest VIC
For SaleCOMMERCIAL LOTS FOR SALE
140 diggers rest-coimadai road,diggers rest, VIC 3427
1,864 m²
Shop & Retail





