18,774 commercial properties for sale in Australia
- AUCTION 18 Dec

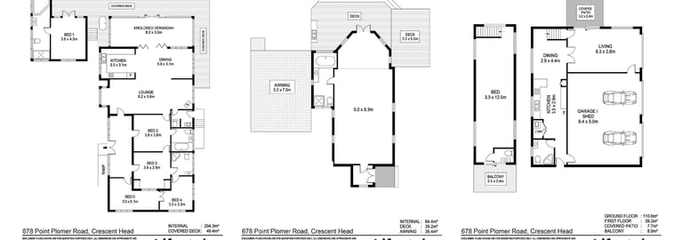
Heath Askew, Nathan WilsonLifestyle Port Macquarie
Price Commercial Auction Address 678 Point Plomer Road, Crescent Head NSW 2440
A highly unique opportunity to secure a turn key lifestyle business on the booming Mid North Coast. "Rancho Relaxo" is set across 137.51 hectares of lush forested grounds just a stone's throw to...
Size 1 m² Property Type Hotel, Motel, Pub & Leisure - New
MAJOR MANUFACTURING FACILITY WITH DEVELOPMENT UPSIDE
Total Area: 11,500sqm* - Industrial 1 Zone (IN1Z) - Ready For Immediate Occupation

Anthony Cannizzaro, Mario MosconSavills MelbournePrice Expressions of Interest Address 22-30 Denmark Rd, Echuca VIC 3564
Unlock a rare opportunity to secure a 4.835ha* Industrial 1 Zoned (IN1Z) landholding with a nation scale manufacturing facility formerly operated by Lactalis. Positioned in one of Victoria's...
Size 11,500 m² Property Type Factory, Warehouse & Industrial - New
ROBSON STREET BUSINESS PARK PREMIUM NEW INDUSTRIAL UNITS FOR SALE
Premium business unit development - Ideal entry level industrial asset - Priced from only $460k

Lawrence Temple, Charles TobinNorth PropertyPrice Pricing Matrix Available on Request Address 34 - 40 Robson Street, Clontarf QLD 4019
Key Features: Newly constructed, architect-designed industrial estate comprising 38 high-quality units situated on an 8,100sqm site Versatile mix of warehouse, industrial and self-storage...
Size 66 m² Property Type Factory, Warehouse & Industrial - New
Iconic Freestanding Facility in a Well-Established Trade Precinct
Prominent 3,816m² versatile showroom in - Assessed fully net income of $1,859,123 - Brand new 5 year lease to Repco

Trent Gallagher, Edward McFarlandColliers International Sydney SouthPrice Please contact agent Address 395 West Botany Street, Rockdale NSW 2216
Colliers, as the exclusive selling agents, are proud to present 395 West Botany Street, Rockdale to the market for sale a rare opportunity to acquire a substantial freestanding facility in one of...
Size 3,816 m² Property Type Factory, Warehouse & Industrial - New
Prime Development Opportunity
Combined site area 5,740sqm* - Regular shaped parcel of land - Offered Individually or In One Line


Carl Pearce, Alistar Siokos, Nick BrooksCushman & Wakefield ParramattaPrice Expressions of Interest Address 209 & 211 Newton Road, Wetherill Park NSW 2164
Cushman & Wakefield Logistics and Industrial team are pleased to exclusively present 209 & 211 Newton Road, Wetherill Park for sale via Expressions of Interest, closing Monday 15th December 2025 at...
Size 5,740 m² Property Type Development / Land - New
Gateway Industrial Park, Environa, NSW -the link you've been looking for!!!
Block sizes 5,180m² -23,937m² - Civil works nearing completion - Limited options available
Michael CeacisSelect Property GroupPrice CONTACT AGENT Address 138 Environa Drive, Environa NSW 2620
Strategically positioned as a link to the Nation's Capital, Gateway Industrial Park connects business, industry, and opportunity like nowhere else. With exceptional access, infrastructure, and...
Size 5,180 - 23,937 m² Property Type Development / Land - New
PRIME WINDSOR HOSPITALITY FREEHOLD OCCUPY, INVEST OR LEASE
VACANT POSSESSION - PRIME POSITION - VALUABLE HOSPITALITY FIT OUT

Charles Emmett, James RookEmmetts Real EstatePrice Contact Agent Address 108 Chapel Street, Windsor VIC 3181
Emmetts are delighted to exclusively present a character-loaded hospitality freehold in the prime trading section of Chapel Street, Windsor with vacant possession and valuable hospitality fit out,...
Size 253 m² Property Type Shop & Retail - New
Ballarat's Premier Employment Zone 9,000 - 4 HA Available
Variety of lot sizes - Close proximity to Ballarat Airport - Titles now issued

Nathan Edgar, Chris BolsinKnight Frank - MelbournePrice Contact Agent Address Stage 2 Ballarat West Employment Zone, Mitchell Park VIC 3355
Sizing: 9,000 sqm* 40,660 sqm* Knight Frank is proud to present Stage 2 of Ballarat West Employment Zone (BWEZ) via Private Sale a rare opportunity to acquire fully serviced, industrial-zoned land ...
Property Type Development / Land - New

Sophie Su, Rachael FabbroKay & Burton BoroondaraPrice Expressions of Interest Address 244 Canterbury Road, Surrey Hills VIC 3127
A prominent corner position on the border of Canterbury provides a high-exposure presence for this two-level commercial freehold, substantial landholding of 892 sqm approx., and internal floor area...
Size 805 m² Property Type Offices - Updated

Henry Mackinnon, Nick MyerElders Real Estate MelbournePrice $5M to $5.5M Address 71 Schoolhouse Road, Samaria VIC 3673
Elders Rural Services Australia Limited is delighted to present for sale 'Valleyfield', a prestigious rural estate boasting a beautifully designed and presented primary residence. The residence is...
Size 156 ha Property Type Rural / Farming - AUCTION 4 Dec

Vincent West, Oliver RosatiUpstatePrice Commercial Auction Address 2/98 Old Pittwater Road, Brookvale NSW 2100
Situated in one of the Northern Beaches most sought-after industrial precincts, this versatile property offers a spacious 398sqm of warehouse and office space. Ideal for a range of business uses, the ...
Size 398 m² Property Type Factory, Warehouse & Industrial - Updated
UNLEASH THE POTENTIAL PRIME RETAIL OPPORTUNITY IN THE HEART OF FLEMINGTON
First time offered in 39 years - Excellent ‘Value Add’ Potential - Two Street Frontages

Alex Ham, Barry NovyGross Waddell ICR Pty LtdPrice Contact Agent Address 328 Racecourse Road, Flemington VIC 3031
Gross Waddell ICR is pleased to offer 328 Racecourse Road, Flemington for sale. Asking Price $850,000 This is a rare opportunity to secure a high-exposure, double-storey commercial building in one ...
Size 198 m² Property Type Shop & Retail - Updated
MORTGAGEE SALE | SUBSTANTIAL RETAIL/COMMERCIAL PREMISES + 73 CAR PARKS
2,020sqm* building over 2 levels - High exposure location - Vacant possession


Alex Ham, Glenn Ye 叶格林, Richard LoweGross Waddell ICR Pty LtdPrice Expressions of Interest Address 1C & 6C/807-809 Warrigal Road, Oakleigh VIC 3166
Gross Waddell ICR, under instructions from KordaMentha, is pleased to offer for sale this high profile showroom/commercial property located within the OROS development. Key property features...
Size 2,020 m² Property Type Shop & Retail 
George Takis, Larry TakisTeska & CarsonPrice Expressions of Interest Address 217, 219 & 221 Dorset Road, Boronia VIC 3155
Teska Carson is pleased to offer 217, 219 & 221 Dorset Road, Boronia for sale via Expression of Interest closing Thursday 11 December 2025 at 3pm. Located close to the major thoroughfare of Dorset...
Size 150 m² Property Type Shop & Retail
Cos FerreriWetherill Park Industrial Real EstatePrice $1,425,000 + GST Address Wetherill Park NSW 2164
* Ideally located in the heart of the Wetherill Park Industrial Precinct in secure complex of 13. * Within close proximity to M7 and M4 motorways. * Mezzanine level office is carpeted and air...
Size 237 m² Property Type Factory, Warehouse & Industrial
Cos FerreriWetherill Park Industrial Real EstatePrice Contact Agent Address Pemulwuy NSW 2145
* Modern Strata Titled Industrial Warehouse and Office Situated in a Prominent Location within Close Proximity to Major Arterial Roads such as the M4/M7 Motorways and Great Western Highway * Located...
Size 272 m² Property Type Factory, Warehouse & Industrial Exceptional CBD Freehold with Major Value-Add Upside
Net Lettable Area: 5,484 sqm* - Exceptional Repositioning Thesis - Invest, Develop or Occupy


Daniel Cullinane, Zachary Edmonds, Evi MekaCushman & Wakefield BrisbanePrice Expressions of Interest Address 21 Stokes Street, Townsville City QLD 4810
Cushman & Wakefield Investment Sales QLD in conjunction with E-Property are pleased to present 21 Stokes Street in Townsville to the market for sale via Expressions of Interest closing at 4pm (AEST)...
Size 5,484 m² Property Type Offices Prime 3-Storey Freehold Opposite Epping Interchange
Opposite Epping Train & Metro Station - 3 storey building with GLAR of 834 sqm* - 6:1 FSR / 72m HL plus 1.5:1 FSR (STCA)
Yumi Cui, Patrick HarlalkaKnight FrankPrice Contact Agent Address 47 Beecroft Road, Epping NSW 2121
Knight Frank is pleased to present 47 Beecroft Road, Epping a highly exposed freehold asset positioned directly opposite the Epping Interchange, one of Sydney's fastest-growing mixed-use precincts. ...
Size 834 m² Property Type Shop & Retail - AUCTION 14 Dec
Rare Freehold Opportunity in the Belconnen Trade Precinct
294m² internal area - 4 on-title car spaces - Zoned CZ2 – Business Zone
Frank WalmsleyAuction AdvantagePrice Commercial Auction Address 7 & 8/66 - 74 Josephson Street, Belconnen ACT 2617
Units 7 & 8, 6674 Josephson Street, Belconnen ACT 294m² internal + 4 on-title car spaces | Zoned CZ2 Business Zone Published Reserve: $1,150,000 1. Owner-Operators Secure Your Base of...
Size 294 m² Property Type Showrooms / Bulky Goods Mortgagee Sale 4.05 Ha* Site within the Approved Tarneit North PSP
Generous 4.05 ha* landholding - Conceptual plan for 38 lots - Walking distance to Future Kenning Road


Michael Gardiner, Nathan Schwarz, Duncan McCullochColliers International MelbournePrice Please contact agent Address 70 Kenning Road, Tarneit VIC 3029
Colliers, under instructions from the Agents for the Mortgagee in Possession, is pleased to present 70 Kenning Road, Tarneit. 70 Kenning Road is a 4.05ha* landholding ideally positioned near the...
Size 4.1 ha Property Type Development / Land
Proposed Developments
Zoning


