Suite 4/29 Albyn Street
Bexley NSW 2207
Listed by
0451 901 005
More about Suite 4/29 Albyn Street Bexley NSW 2207
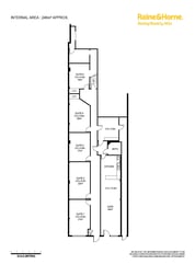
Suite 4/29 Albyn Street Bexley NSW 2207 is categorized as Office. It has a floor area of 20 m². The listing ID for this property is 18044247.





