Stage 3 Tamworth Business Park
Tamworth NSW 2340
SearchBack to results
- Home
- › For Sale
- › NSW
- › Tamworth
- › Development / Land
- › Stage 3 Tamworth Business Park, Tamworth NSW 2340
Stage 3 Tamworth Business Park Tamworth NSW 2340
- Development / Land
- 7,495 m²
- For Sale, By Negotiation
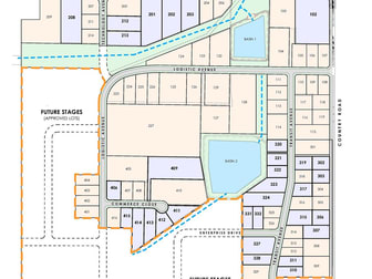
Tamworth Business Park Stage 3
WESTDALE - Tamworth Business Park is Hunter Land's answer to a market in need for dedicated transport and associated use sites in North West NSW.
Critically located at the junction of New Winton Road and Oxley Highway, the site is just minutes from Tamworth Regional Airport, Tamworth Regional Sale yards, and the Tamworth Intermodal Freight
Property Highlights
| Floor Area | 7,495 m² |
|---|---|
| Land Area | 7,495 m² |
| Property ID | 2017588081 |
| Category | |
| Last updated | 15 Jan 2026 |
Map for Stage 3 Tamworth Business Park Tamworth NSW 2340
Nearest transport* to Stage 3 Tamworth Business Park Tamworth NSW 2340
Property Highlights
| Floor Area | 7,495 m² |
|---|---|
| Land Area | 7,495 m² |
| Property ID | 2017588081 |
| Category | |
| Last updated | 15 Jan 2026 |
Co-Agents
0459 347 562
0427 003 888
More about Stage 3 Tamworth Business Park Tamworth NSW 2340
Stage 3 Tamworth Business Park Tamworth NSW 2340 is categorized as Land & Development Property. It has a floor area of 7,495 m² and a land area of 7,495 m². The listing ID for this property is 2017588081.
More Development / Land for Sale in Tamworth NSW



For SaleContact Agent
longyard golf course longyard drive,tamworth, NSW 2340
63.01 ha
Development / Land




