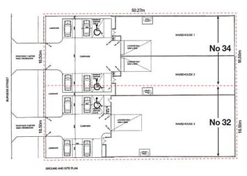
32-34 Burgess Street
Brooklyn VIC 3012
SearchBack to results
- Home
- › Sold
- › VIC
- › Brooklyn
- › Development / Land
- › 32-34 Burgess Street, Brooklyn VIC 3012
Listed by
More about 32-34 Burgess Street Brooklyn VIC 3012
32-34 Burgess Street Brooklyn VIC 3012 is categorized as Land & Development Property. It has a land area of 930 m². The listing ID for this property is 2009920154.



